◘ Sistemi harmonika (preklopno-kliznih elemenata) od PVC materijala u svim sistemima AD70, Select 70, MD 88+, AluClip
◘ Proizvodimo elemente sa 3 ili više krila za prozore, balkonska vrata, zatvaranje terasa, zatvaranje balkona, pregradne zidove, zimske bašte...
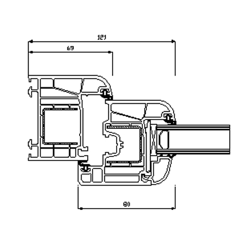
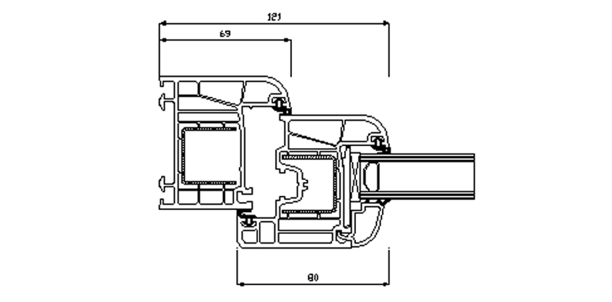
AD 70 SELECT
◘ Poboljšana toplotna zaštita pomoću dubine ugradnje od 70mm
◘ 5-komorna tehnologija
◘ Moderan dizajn
◘ Različite varijante dekora i boja
◘ Ekonomičnost pomoću minimiziranog lagerovanja
◘ Dodatna toplotna zaštita sa Uf=1.3 W/m2K
◘ Dodatna zvučna zaštita pomoću dubljeg žljeba, Rw=33-45dB
◘ Više sigurnosti pomoću Euro žlijeba od 13 mm do WK3
◘ Poboljšana statika
◘ Ojačanje pomoću pocinčanih željeznih profila d=1,5-3,0 mm
◘ Optimalna izotermalni protok
◘ Optimalna montaža
◘ Sistem je ispitan od strane njemačkih instituta i ima sve certifikate