Po Vašoj mjeri, ALUMIL-ova serija M23000 FORESTAL je najnoviji odgovor ALUMIL-a na zahtjeve tržišta za hi-end, okretno – nagibnim sistemima sa termo-prekidom. Objedinjuje dvadesetogodišnje iskustvo i znanje u dizajniranju aluminijumskih konstrukcija i obogaćuje njihov kvalitet estetikom drveta.
Prvobitno zamišljen kao proizvod za biznis korisnike (omogućava nosivost velikih staklenih površina) dolazi do Vaših domova.
Aluminijum drvo stolarija predstavlja našu ekskluzivnu ponudu u okviru sistema sa termo prekidom, naglašene toplotne i zvučne izolacije, kao i visokih bezbjednosnih standarda.
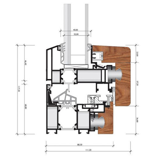
Vrhunska klasa toplotne izolacije sa poliamidom (fiberglas – polimerizovani PA 6.6), 24 mm u ramu i 20 mm u krilu, (prema Standardu DIN52619 – 3: U(K) = 1.4 - 1.6 W/m2K ; grupa 1.0), povećana debljina profila za jake konstrukcije sa velikom izdržljivošću, višekomorni profili za ramove i krila, profil od posebne legure na peru rama, što sam ram čini čvršćim i bezbednijim u slučaju pokušaja provaljivanja, višekomorna centralna zaptivna guma što doprinosi povećanoj toplotnoj izolaciji, drveni i aluminijumski delovi su povezani plastičnim kopčama, stvarajući prazninu od 5 mm kojom cirkuliše vazduh, i na taj način onemogućava kondenzaciju vode, okretno – nagibni mehanizam od 16 mm koji bravi na nekoliko mesta istovremeno po celom obodu krila, tzv. perimetrički mehanizam (klasa WK3), mogućnost zastakljivanja staklo paketom do 32 mm.
Spoj vrhunskog kvaliteta aluminijuma i estetike drveta
Sistem Alumil M23000 Forestal je rezultat Alumil-ove uloge lidera u projektovanju i predstavlja spoj vrhunskog kvaliteta aluminijuma, najpodesnijeg materijala za spoljašnju upotrebu, otpornog na sve vremenske uticaje, sa nespornom stilsko-estetskom ulogom drveta kao materijala enterijera.
Osnovni konstruktivni materijal prozora je aluminijumski profil sa termoprekidom, koji je sa unutrašnje strane obložen drvenim profilima. Aluminijum spolja štiti drvo od atmosferskih uticaja tako da drvo ostaje nepromijenjenog izgleda i poslije 20-ak godina eksplatacije. Sam spoj aluminijuma i drveta ostvaren je posebnim kopčama koje ne prenose naprezanja do kojih dolazi usljed širenja i skupljanja materijala, te dozvoljavaju cirkulaciju vazduha sprječavajući koroziju usljed kondenzacije.
Alumil M23000 se smatra sistemom visokog bezbjednosnog nivoa, primjenom posebnog zabravljivanja mahenizmom sa “pečurkama” i 13mm PVC žljebom. Kao rezultat postignuto je 30 min. protiv-provalne zaštite u klasi WK3 prama certifikatu IFT Rosenheim. Takođe, poliamid širine 24mm, primjenjen u ovom sistemu podigao je toplotnu izolaciju, pa je UF=2,1 W/m2K.
M23300 je Alumil-ovo vrhunsko rešenje podizno-kliznih sistema, idealno za luksuzno projektovane objekte i velike otvore. Svojstvenost konstrukcije je i nosivost krila do 250kg na vođicama od nerđajućeg čelika i zastakljivanje staklopeketima debljine do 46mm.
Vrsta drveta i boja bajca može da se usklađuje prema Vašem enterijeru (parketu, namještaju i sl.). Na kraju, aluminijum se može bojiti plastifikacijom ili eloksažom. I jedan i drugi način, omogućavaju veliki izbor boja, a ujedno predstavljaju zaštitu aluminijuma od atmosferskih uticaja. Zaptivanje se obezbjeđuje zaptivnim gumama različitih profila i u više zona. Stakla mogu biti u više varijanti od standardnih dvoslojnih, nisko-emisiono (low-E), stop-sol, pancir, kaljeno itd.
Tehničke karakteristike ALUMIL M23000 Forestal
Svojstva ALUMIL M23000 Forestal