M11000 Alutherm Plus je najrasprostranjeniji profil aluminijumske stolarije sa termo prekidom za prozore i vrata svih vrsta.
Karakteriše ga velika pouzdanost (klasa Wk3 protiprovalne otpornosti) i prilagodljivost svim zahtevima, čineći ga idealnim izborom kako za poslovni tako i za stambeni prostor.
Podržava mogućnost ugradnje aluminijumskih roletni i aluminijumskih rolo komarnika.
Najrasprostranjeniji profil aluminijumske stolarije
Detalji
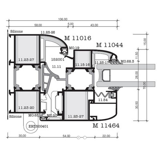
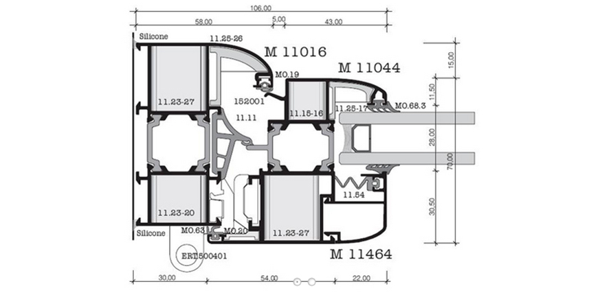
◘ širina osnovnog krila 70 mm
◘ širina osnovnog štoka 62,5mm
◘ zaptivanje pomoću tri EPDM zaptivke
◘ veliki broj različitih rješenja, sa mogućnošću upotrebe profila
različitog estetskog dizajna
◘ ugradnja oklopno-nagibnog okova
◘ okov za euro žlijeb ili okov za PVC profile
◘ profili sa dvije slobodne komore koje omogućavaju dobru
evakuaciju vode i dobro vezivanje
◘ termički prekid pomoću poliamida ojačanih staklenim vlaknima (20mm u krilu, 24mm u štoku)
◘ mogućnost upotrebe livenih spojnica, spojnica za upresavanje
i spojnica sa klinovima
◘ profili za sve dimenzije vrata, pogodni i za komercijalne i za
privatne objekte
◘ ostakljenje do 57mm
Osnovna tipologija
◘ jednokrilni, dvokrilni i višekrilni prozori sa ili bez grilja
◘ ulazna vrata i staklene stijene
◘ ugaone konstrukcije
Ispitivanja
◘ EKANAL, IFT, IGH, ROTO
◘ Termo izolacija Uf=2,3 - 2,9 W/m2K
◘ Materijal: AlMgSi0,5 (6060)
◘ Zatezna čvrstoća: 215 N/mm2
◘ Tvrdoća po Brinelu: 2,75 Kg/dm3
◘ Debljina anodno-oksidnog sloja: 18-23 mikrona
◘ Debljina sloja plastifikacije: 60-80 mikrona,
◘ Debljina stijenke profila: 1,4-2,0 mm,
◘ Ispuna: do 50mm,
◘ Koeficijent prolaza toplote: 2,5 W/m2K